Výstrahy
Krkonoše
Jeseníky
Beskydy
Rekonstrukce stanice HS Klínovec
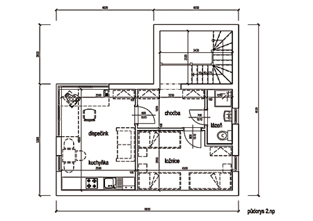
projde tato stanice ještě letos rekonstrukcí. Tak jako se v čase mění potřeby lyžařů, mění se i požadavky na jejich záchranu. Klínovecká stanice, která je již bezmála 50 let stará, přestává svým vnitřním uspořádáním dostačovat požadavkům, jež jsou na ni kladeny. A proto jsou vám níže k nahlédnutí návrhy, jak by mohla zrekonstruovaná stanice vypadat.
aktuální informace pro ty, které zajímá v jaké fázi se projekt nachází:
- Květen zpracovává se projektová dokumentace na novou stanici
- Červen jsou zapracovávány připomínky k projektu
- 14.července ukončení výběrového řízení na zhotovení stanice
- 6. srpna dokonáno jest, stará stanice je až na pár zdí vymazána z mapy. Začíná stavba nové
- 13. srpna začíná rekonstrukce přízemí a garáže
- 15. září je hotová hrubá stavby a začíná stavba střechy
- 1.října projekt je 10 dní za předpokládaným kalendářem, začínají se dělat interiery
- 10.řijna probíhají dokončovací práce v interiérech a omítání exteriérů
- 23.října za týden proběhne ukončení stavebních prací a začne vybavování stanice
- listopad (pracovní název nové stanice "Nádraží") foto níže. Finální podoba bude prý vzhlednější :)
- A je to tady v pátek 7.prosince 2008 v 10:00 hod proběhla KOLAUDACE nové stanice!!!
- Pro ty co mají rychlejší připojení je tady cca 4MB fotografií z nové stanice po kolaudaci
- 20.6.09 A tady je kompletní stanice v novém kabátě
(pod obrázky je datum poslední aktualizace tohoto příspěvku)
níže je návrh finální fasády























